5月2日23时许,地处河南开封的河南大学明伦校区大礼堂发生火灾,造成这一全国重点文物保护单位的部分屋顶坍塌损毁。这座大礼堂见证了河南近代高等教育发展,也见证了历史沧桑,却在修缮过程中毁于大火,令无数人心痛惋惜。
据央视新闻5月5日消息,5月2日,河南大学明伦校区大礼堂发生火灾事故,影响重大。国务院安委会决定,对该起火灾事故查处实行挂牌督办,并派出督办组赴当地督促指导河南省调查组工作,要求科学严谨尽快查明事故原因,依法依规严肃追责问责。
记者注意到,早在2022年,河南大学一篇硕士学位论文《教育建筑遗产的消防与可持续保护利用研究——以河南大学近代建筑群为例》就为大礼堂的火灾敲响了警钟。
这篇论文指出,河南大学教育建筑遗产群火灾荷载大、火灾隐患多、疏散条件不足、自救能力弱、消防设施不完善,尤其是大礼堂作为观演场地,自身存在的火灾危险性较高。潜在的火灾因素包括:电气火灾,如原有电气线路老化,电气设备增多,用电荷载过大;用火不慎,使用人员室内吸烟、违规使用大功率,管理人员做饭、取暖、照明等生活用火引发,维修施工时操作不当或使用的明火工具不慎引燃室内可燃物;雷击,不可抗力因素引发。
研究者建议,大礼堂是河大建筑群中建造时间最早,遗存时间最久,艺术价值最高的教育建筑遗产,对它的所有维护和修缮工程都应在河南省相关建筑遗产保护机构的批准下进行,并由具有专业资质的工程队伍或学校专门的建筑遗产保护团队来接手。
该论文的作者是河南大学设计学工学硕士翟羽佳,指导老师是该校土木建筑学院副教授蒙慧玲。公开资料显示,蒙慧玲是河南省消防协会科学与教育专业委员会委员,主要从事建筑技术科学专业的教学与研究工作,研究方向为建筑防火、建筑节能。

《教育建筑遗产的消防与可持续保护利用研究——以河南大学近代建筑群为例》论文封面截图
大礼堂的消防安全隐患
该论文通过对河南大学教育建筑遗产进行基础现状调研,分析总结了防火安全设计、消防保护技术、安全意识培养、遗产保护管理、遗产保护宣传等方面的现状问题,并对可能存在的潜在问题以及实际保护工作中所面临的客观限制进行了相关阐述说明。
据研究者调研,大礼堂南北长73.75米,东西宽53.75米,高24.4米,总建筑面积为4687m²,占地面积3932m²,作为一种中国近代教育建筑风格的崭新探索,传统大屋顶与西方柱式两者融合得相得益彰。相较于近代建筑群中的其他建筑,大礼堂建筑体量大,建筑结构复杂。大礼堂建筑主体为钢筋混凝土结构,八根钢筋混凝土承重柱支撑屋顶钢架,参照建筑耐火等级划分要求,大礼堂的耐火等级应为二级。
该论文指出大礼堂存在以下一些安全隐患:大礼堂北侧两个楼梯正对建筑的其中两个出入口,楼梯间无前室,与一段走道形成封闭楼梯间,靠外墙处开设窗洞,提供自然通风和采光。封闭楼梯间内的门均为双开木门,防烟防火性能较弱,人员疏散时易受烟气侵袭。

大礼堂舞台潜在可燃物实景图。论文截图
另外,舞台空间处舞美设施多,电气线路复杂,舞台布幕及观众厅部分座椅、地毯均非耐火性织物,可燃物分布面积较大。舞台和观众厅空间存在较多可燃物,舞台部分铺设木质地板,宽18.23m,深12.19m,上方设检修桥架、大幕、垂幕、舞美灯光和墙上的各种隐藏线缆构成潜在阶梯可燃物。观众席座位都套有纺织物品,池座台阶处和外廊走道均铺设有化纤地毯,属于易燃可燃物品,若不能及时得到消防救援,将极有可能快速参与火灾的发生和发展,使火势迅速波及至整个舞台和观众厅。
消防设施方面,大礼堂观众厅外的走廊里每隔10m便放置有一个落地式灭火器箱,但部分区域的灭火器已达到报废年限。在舞台两侧还装有室内消防栓,但二层区域存在无法正常开启消防栓箱门的现象。大礼堂装有火灾报警器、烟雾报警器和自动喷淋设施,但缺少电气火灾监控系统,且部分消防装置、设备较为陈旧老化。由于大礼堂建设时间过早,建筑结构较为固定,屋顶钢架所能承载的荷载也有一定的限制性,因此一些需要安装在屋架上和天花板中的现代消防设施无法得到有效布置,这些客观条件都制约着大礼堂内防火技术的发展。

大礼堂基础消防设施及微消站。论文截图

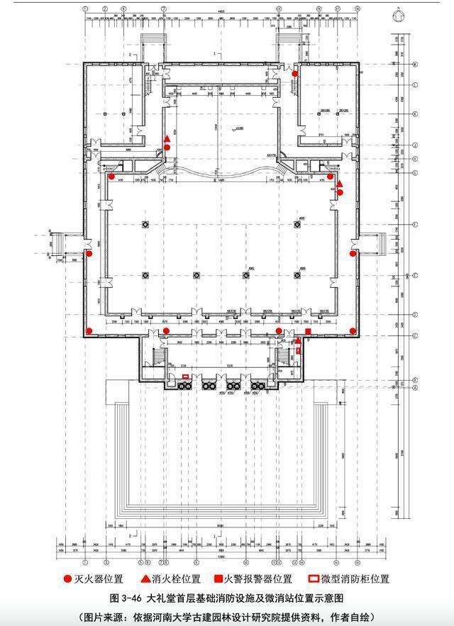
大礼堂首层基础消防设施及微消站位置示意图。论文截图

大礼堂二层基础消防设施分布示意图。论文截图
在安全管理方面,在大礼堂安全管理规则中,明确规定了大礼堂内部在召开会议、报告和举行演出期间不得提供明火设备,不得出现和使用烟火。在大礼堂内部设有一处微型消防站,并在墙上明显处贴示了微消站应具备的职责、站长(副站长)职责、消防员(安全员)职责及装备使用规则,并有值班人员定期巡逻排查安全隐患。但据现场调研观察到,消防值班人员较少,且房间周边摆放了较多杂物,占据部分公共空间,不利于值班人员在发生灾情时快速做出反应。此外,对于消防重点区域的管理,缺乏科学有效的行为准则和参考规范。
火灾荷载大,消防设施不完善
研究者通过对河南大学教育建筑遗产的消防现状实地调研,总结得出当前校园内建筑遗产保护单位存在的消防安全问题和保护利用问题如下:
一是,火灾荷载大。河大教育建筑遗产群建造时间较早,受社会条件、技术发展等客观因素的影响,建筑材料耐火极限较低,耐火性能较弱,建筑内部设计没有较为科学的防火规范约束。例如,大礼堂的安全出口较少,屋顶钢架所能承受的荷载也有限,且由于是国家级文物保护单位,不能在建筑本身上做较大改动,可实施的防火措施较为被动。因此,河大老校区中教育建筑遗产的人群安全性大多靠疏散速度和逃生秩序决定。
二是,火灾隐患多。河大教育建筑遗产因其特殊的使用性质不便于通过“一刀切”的管理方式进行安全保护,需要保证河南大学校区内原有建筑的各项功能可供学校师生日常使用,但其房间内不乏电脑、多媒体、空调等电器。电气电线沿建筑屋顶、墙体明线布置,部分走道区域内的电线相互交叉缠绕,管理混乱,部分斋房建筑中配电箱存在积灰情况,应及时清理,避免因此出现较大的电气火灾隐患。
三是,疏散条件不足。斋房、六号楼建筑面积较小,疏散走道和疏散楼梯较为窄小,加之需要放置教学物品,会影响人员通行效率;建筑内的木制楼梯由于长时间的使用已有了较大的磨损,且楼梯间多为开敞式,无防烟设施,逃生安全等级较低,不利于人群的快速疏散;疏散出口数量较少,出口朝向单一,逃生环境无法得到保障;斋房建筑群外部消防车道宽度较窄,无法满足普通消防救援车辆的正常通行。
四是,自救能力弱。建筑内虽利用部分房间设置了值班室和微型消防站,但没有相对专业的专职消防人员,自防自救能力不足,对于应急事故处理也没有较为完备的预案和流程;校园师生对于火灾事故应急演练较生疏,对于建筑周边可供消防取水的消防栓位置不清楚、不了解。
五是,消防设施不完善。大礼堂作为观演场地,自身存在的火灾危险性较高,但现场所安装消防设备仅适用于普通场景灭火,未有针对电气火灾的灭火技术支持,大厅出入口也未有明显消防设施位置示意图及逃生路线图。各类火灾危险成因都应具备相应防范措施,但从现场观察及对曾使用过该场所的人员谈论了解,大多数使用人员不具备基础的消防安全知识,主要内容包括但不限于灭火器位置、灭火器使用方法、各层疏散通道、疏散楼梯位置等。此外,河大教育建筑遗产中一些已达到报废年限的消防灭火器未及时更换,部分疏散楼梯中的照明设施也出现了破损与缺失。

潜在不同火灾类型致灾因素分析。论文截图
建筑遗产可持续保护对策
基于实地调研,研究者建议,依据河南大学明伦校区现有校园空间格局,对其中的教育建筑遗产构建全链条保护,可按照使用性质的不同将整个建筑遗产区域划分为以大礼堂及周边环境为主的核心保护区,以斋房、六号楼、七号楼等教学办公为主的中心保护区和教育建筑遗产相邻的景观风貌保护区,不同级别应采取不同的保护措施。

河南大学教育建筑遗产保护分区示意图。论文截图
研究者提出,大礼堂是河大建筑群中建造时间最早,遗存时间最久,艺术价值最高的教育建筑遗产,对它的所有维护和修缮工程都应在河南省相关建筑遗产保护机构的批准下进行,并由具有专业资质的工程队伍或学校专门的建筑遗产保护团队来接手。同时,对于大礼堂周边的校园景观空间也应予以相同程度的保护,维持原有建筑环境风貌,突出大礼堂在建筑群中的重要地位。在核心保护区中通过更换内部设施设备,改善大礼堂室内使用环境,尤其加强对于电气线路的管控,保证学校学术交流、表演集会等大型活动顺利开展。
除管理、修护层面,大礼堂在举行校园活动时,使用人群并非完全是河大师生,因此既要强化学校管理部门对于使用建筑遗产的监督,也要注重规范内部人员行为,在活动开始前强调危险行为会引发的严重后果,说明参会与观演时的注意事项。
研究者建议,落实教育建筑遗产保护责任制度,便于管理部门行使监督权力和监管义务,同时保障各项保护细则落到实处,敦促相关责任人严格执行保护条例。河大老校区内属于全国重点文物保护单位的教育建筑遗产一旦受到损害,就应当追究事故责任人和保护责任人的违规行为,使其承担相应的处罚结果,保护侵害主体的利益,因一时疏忽、操作不当或明知不可为而为之的则需承担更严重的法律责任。
对于校园管理部门,在制定教育建筑遗产保护责任范围时,要将与建筑遗产相关的事务、工作统筹考虑,并在学校内部设立独立于行政单位之外的专职教育建筑遗产保护部门。将河大教育建筑遗产作为博物馆里的“文物”进行管理和保护,而非一处固定的校园资产,才能脱离传统意义上的遗产保护方式,简化保护程序,使各项保护措施更直接地应用于其中,以此更好地对外展示建筑价值,扩大影响范围。
研究者还建议,调整功能结构,降低火灾安全隐患。随着历史变迁和时代更替,部分教育建筑遗产周边的自然环境和社会环境发生了翻天覆地的变化,但在基本的人文环境中并未发生根本性的改变,由此使其原有的使用功能得以延续。河南大学近代建筑群,建成于1912年,中西合璧、美观实用、浑厚典雅,即使历经百年沧桑巨变,其中许多建筑依然发挥着原有的使用功能,2006年包含南大门、六号楼、七号楼、斋房、大礼堂等16栋建筑被列入全国第六批重点文物保护单位。对于这些建筑遗产的可持续保护,就是对其进行安全性能提升后使用功能的延续。
进行可持续发展性能提升的必要原因有二:一是许多仍在使用的教育建筑遗产经历了漫长的时代变迁,或风雨雷击或战火侵袭或使用时人为磨损,需要对其进行结构加固、表面修复、防火改造等措施,以对教育建筑遗产的历史价值、文化价值、社会价值进行保护;其二,满足基本的安全性能要求后,人们对建筑舒适性和建筑艺术性的体验需求也越来越大,教育建筑遗产在价值保护的基础上进行恰当的性能提升,对于保证当地人文环境背景延续建筑原始使用功能也是十分必要的。
总的来说,该论文分别从消防保护技术、消防监管机制、应急处理策略三个方面介绍了安全应对措施。基于重点文保单位原真性保护的原则上,提出以早期识别、初期控制、火灾预防、安全管理为主,技术提升为辅的防火手段。通过增设室外消防爬梯、涂刷建筑耐火涂料、拓宽校园消防车道、规划校园避难空间、增加室内消防灭火器数量等保护技术,搭配校园安全监管平台的统筹管理,实现消防部门、校园管理部门、校园使用人员的全方位防御体系。结合城市消防部门定期开展的消防安全体检式检查,及时发现问题,利用人防、物防的大量介入,解决存在问题,既能够降低对建筑遗产的二次改造伤害,又能快速融入校园已有的防控系统,有效提升整体建筑安全性能。